Neodom Dom Sprzedaż Pierwotny Apartament w Zabudowie Szeregowej
KRA-DS-7784

Apartament w Zabudowie Szeregowej

Kraków, Bronowice, Zapolskiej
KRA-DS-7784 Zadzwoń
2 147 000 PLN
14 506 PLN/m2
1/10

Szczegóły oferty

2 147 000 PLN
(14 506 PLN/m2)
Powierzchnia:
148 m2
5 pokoi

Opis oferty

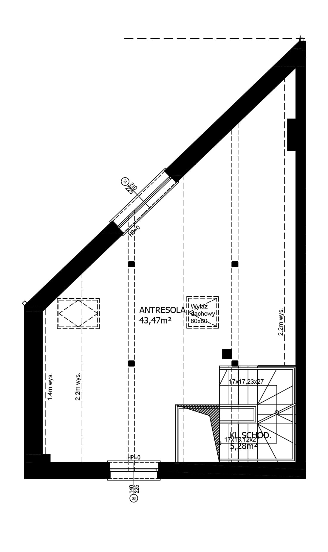
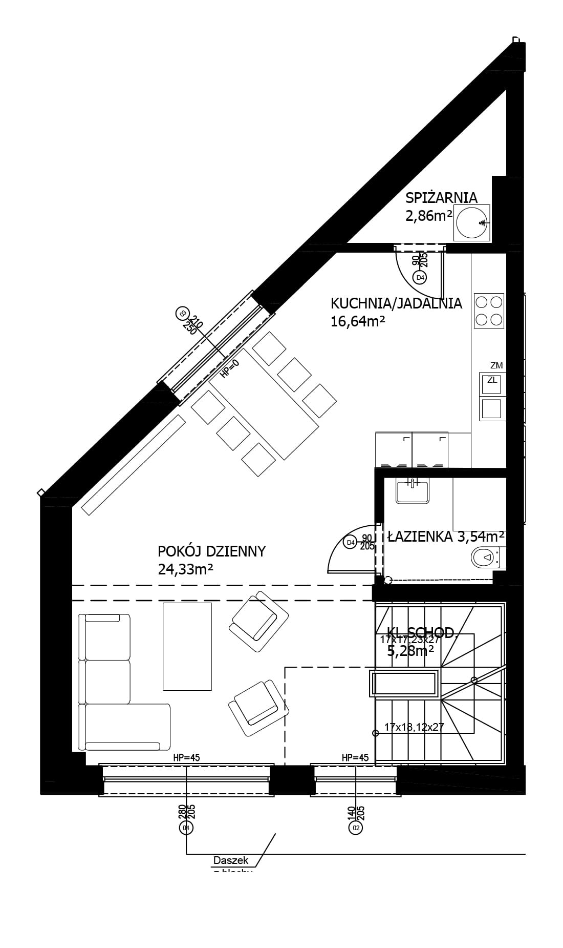
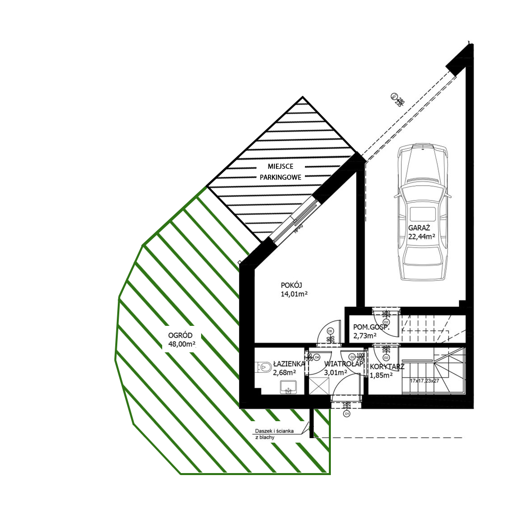
Kameralny apartament o łącznej powierzchni niemal 150m2 wliczając w to 25m2 garażu i pomieszczeń gospodarczych oraz 43 m2 antresoli. Budynek w zabudowie bliźniaczej jednak o specyficznej charakterystyce zapewnia pełny komfort, swobodę i prywatność, a jednocześnie gwarantuje sporo przestrzeni użytkowej.

Przede wszystkim nasze wille dedykowane są dla ludzi, którzy po pracy chcą odpocząć w komfortowych warunkach i cenią sobie życie prywatne, jednocześnie nie chcąc wyprowadzać się poza Kraków.

PARTER

PIĘTRO

ANTRESOLA

Termin realizacji: - rozpoczęcie robót budowlanych - październik 2024r. - zakończenie robót budowlanych - listopad 2025r. - oddanie do użytkowania - marzec 2026r. Całość inwestycji będzie składać się z 4 APARTAMENTÓW o powierzchni od 145m2 do 202m2. Do każdego z nich przynależy garaż w bryle budynku oraz ogródek. STANDARD DEWELOPERSKI!

Lokale mieszkalne będą oddawane do użytku w stanie deweloperskim obejmującym m.in.: wylewki cementowe, tynki gipsowe, stolarkę aluminiową, ogrzewanie podłogowe zasilane pompą ciepła, instalację wentylacji mechanicznej, rozprowadzenie instalacji pod montaż klimatyzacji. Ogrzewanie podłogowe, okna aluminiowe, pompa ciepła, rekuperacja - to wszystko wpływa na standard oraz energooszczędność apartamentu.

Lokalizacja

Zamieszczone na naszych stronach oferty nie stanowią oferty w rozumieniu Kodeksu Cywilnego, a dane w nich zawarte mają jedynie charakter informacyjny i mogą ulec zmianie. Każde biuro nieruchomości działające pod marką neodom® jest niezależnym podmiotem gospodarczym.

Szczegóły oferty

2 147 000 PLN
(14 506 PLN/m2)
Powierzchnia:
148 m2
5 pokoi

Detale oferty

Rodzaj domu segment
Stan domu stan deweloperski
Ilość pokoi 5 pokoi

Uzyskaj pomoc
w finansowaniu.

Dowiedz się więcej

Może zainteresujesz się

neodom® używa na tej witrynie plików cookie i podobnych rozwiązań technologicznych do ulepszania i dostosowania treści, analizy ruchu, dostarczania reklam oraz ochrony oraz spamem. Dowiedz się więcej.
Akceptuję